Description
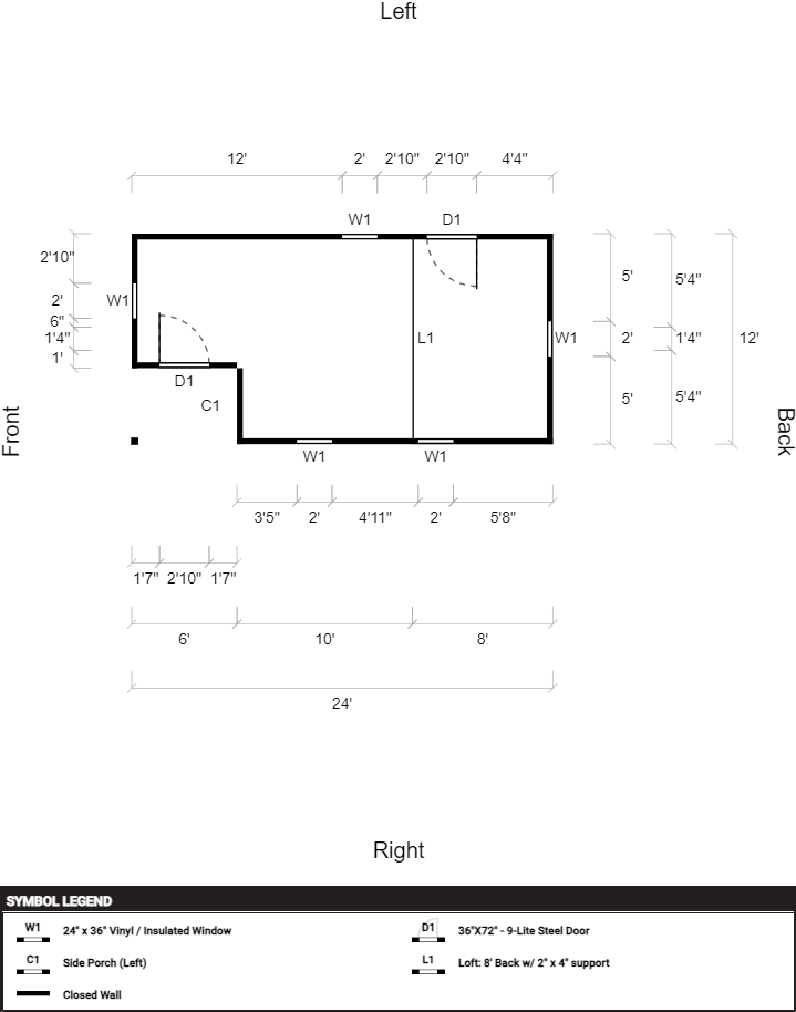
Size: 12′ x 24′
Brand: Wild Cherry
Style: Paint
Model: Lofted Cottage
Walls: White / LP Smartside
Trim: Black
Roof: White / Metal
Features: (2) 9-Lite Entry Doors, (5) 2′ x 3′ Vinyl / Insulated Windows, 4′ x 6′ Corner Porch w/ railing, LP SmartSide siding (50 Year), 6’3″ Clear interior sidewall height, 4′ Loft in back of building, Loft above Front Porch






Reviews
There are no reviews yet.